Здравствуйте. Текст вставлю сразу полностью, картинки буду добавлять постепенно (интернет медленный).
Машинке исполнилось 20 лет из которых 16 мои и коррозия сожрала изнутри внешнюю часть порогов сантиметров по 30 спереди и сзади. Оказалось, что у платформы А5 есть конструктивный «косяк» - из под передних подкрылков пыль, жидкая грязь и соленая вода с песочком зимой легко попадает в порог.
===фото00===
Объехав окрестные сервисы и услышав цены на переварку и покраску (с неизвестным результатом), решил заняться этим вопросом сам. Если бы делал на продажу, то не морочился бы и отдал в сервис, где подешевле. Опыт сварочных работ по кузову имеется, красить тоже могу на 4 с минусом, поэтому решился, потому как для себя и машину продавать не собираюсь. Работать с земли или ямы в гараже с такими низкими порогами невозможно. После изучения имеющихся конструкций в интернете решил сделать подъемник-«вертел».
===фото01===
Народ делает простейшие «вертелы» для пустых кузовов, но Touran в сборе машина довольно тяжелая и захотелось что то понадежнее. В принципе есть такие конструкции заводского исполнения для автосервисов от «Сорокин-инструмент» и даже на колесиках, но они для больших просторных помещений с ровными полами и стоимостю в районе 200тр.
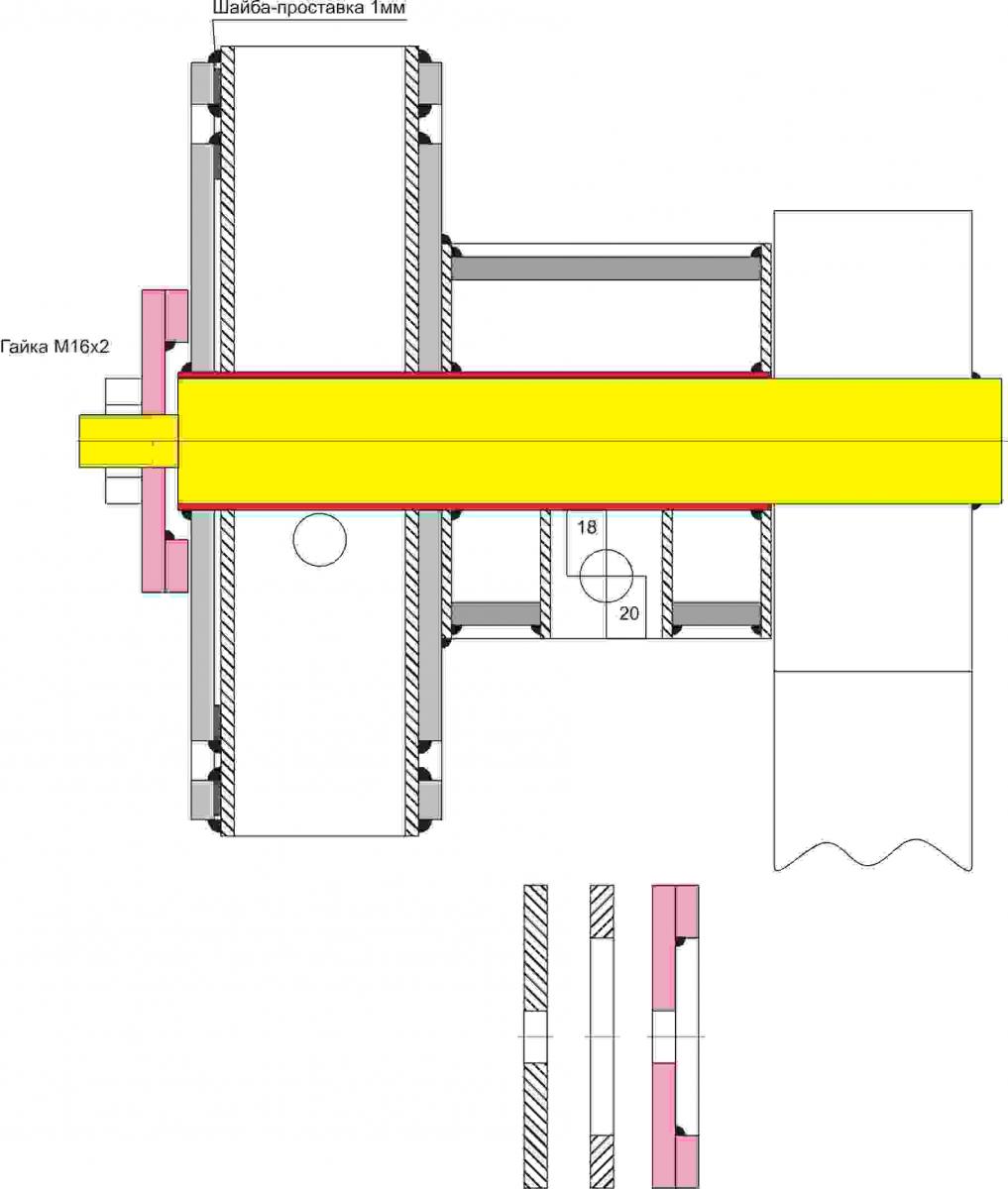
Для сварной конструкции стоек понадобилось купить квадратный профиль 60х60х4 в количестве 24 метра (в результате остался обрезок 60см). Остальные железяки – из того что было в гараже. Для изготовления конструкции очень желательно иметь свободный доступ к небольшому токарнику, сверлильному станку, сварочному полуавтомату. На токарнике делаются большие отверстия в пластинах, квадратных профилях и точатся валы.
===фото 02===
===фото 03===
===фото 04===
На сверлильном станке сверлятся все остальные отверстия.
===фото 05===
===фото 06===
Далее после всех прикидок конструкция сваривается в стойку
===фото 07===
Делаем контрольный подъем, проверяем, что не ничего не гнется и не собирается отваливаться.
===фото 08===
Покупные детали для сборки и использования подъемника – два гидроцилиндра 3-х тонники. Болты М16х2х210 от ГБЦ КАМАЗ – 8шт (4 для сборки стоек и 4 в качестве фиксирующих пальцев при подъеме), болты М12х1,25х140 – 8шт для крепления поперечных балок к маятнику, кучка гаек для болтов. Валы изготовлены из кругляка 40мм, спасенного из чермета. Для поворотного узла была реализована идея применить маховик от классики с шестерней от бендикса стартера, но как оказалось это усложнение конструкции не нужно. Машина довольно легко поворачивалась с помощью трубы и фиксировалась от возвращения в исходное положение трубой-подставкой. Этого оказалось вполне достаточно для всех работ. Перед подъемом и поворотом машины на всякий случай снимал аккумулятор, а масло и топливо (в баке было литров 10) не сливал, ничего нигде не вытекло.
===фото 09===
Продолжение следует...


29поблагодарили




















